Bilder och dokument

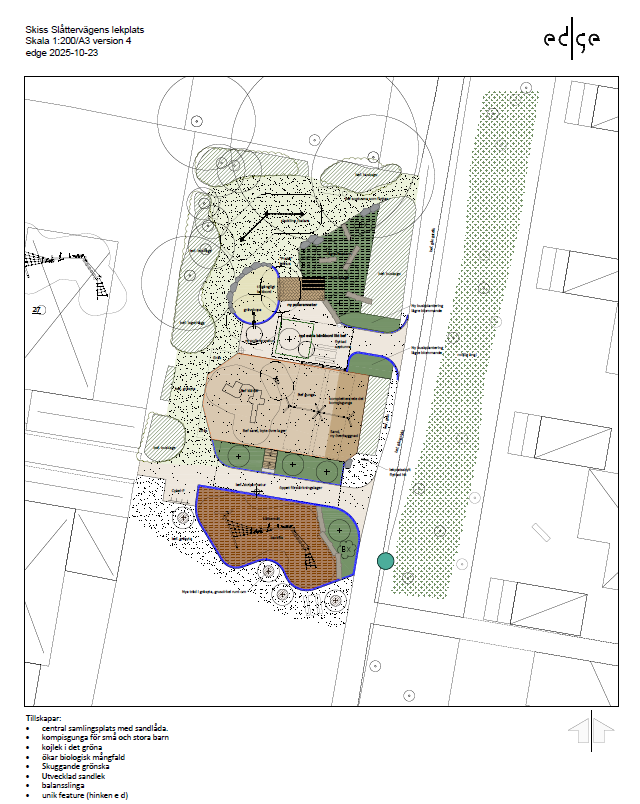
Skiss på förslag till upprustning av Slottervägens lekplats i Skanör.

Skiss på förslag till upprustning av Tornlekplatsen i Vellinge.


- Senast uppdaterad:
- 29 oktober 2025 12:44

Skiss på förslag till upprustning av Slottervägens lekplats i Skanör.

Skiss på förslag till upprustning av Tornlekplatsen i Vellinge.

